8211 Huspa AvenueMadison, AL 35756


Mortgage Calculator
Monthly Payment (Est.)
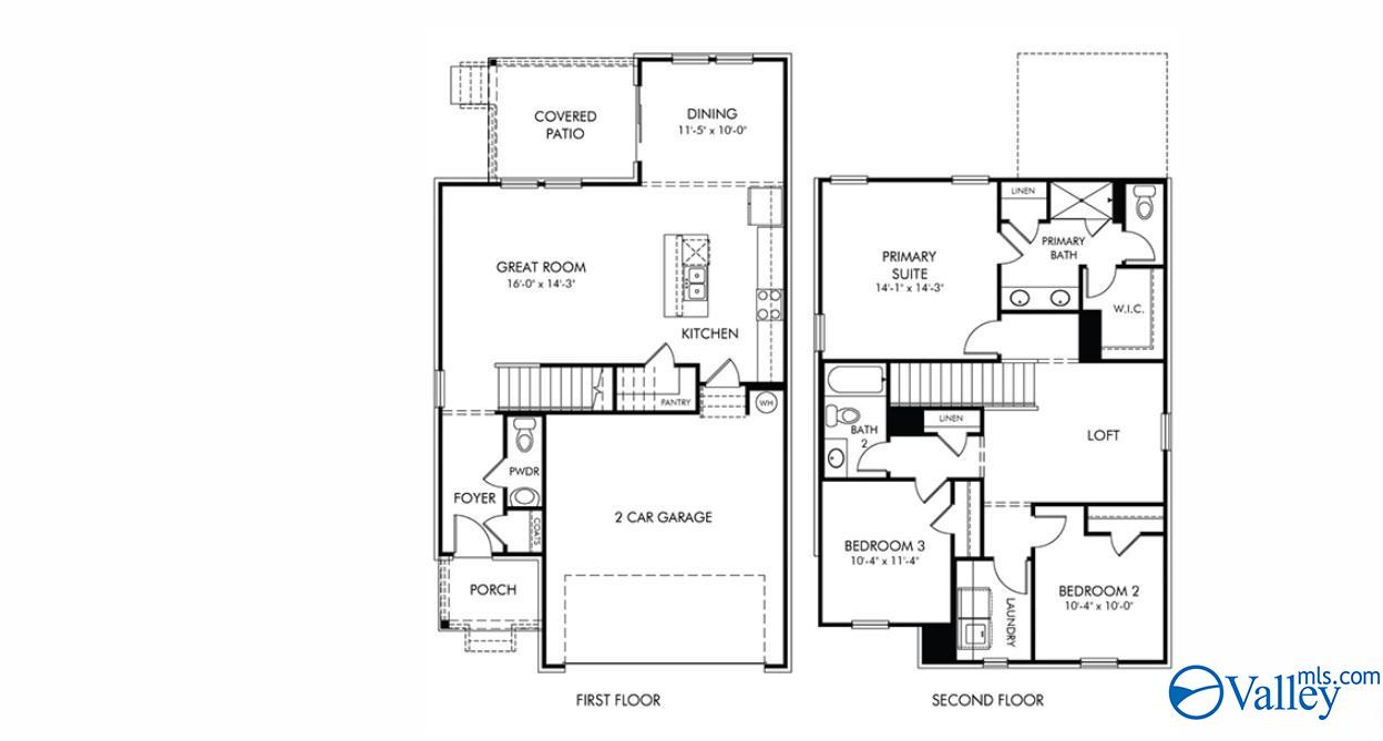
$1,414Move in Ready!! NEW energy-efficient home ready NOW! Prep dinner at the kitchen island while catching up with guests in the open-concept living area. Upstairs, the loft makes an ideal media room. A spacious walk-in closet and dual-sink ensuite bath complement the primary suite. Madison Preserve features ranch and two-story single-family homes. This community is located off I-565 with easy access to the Huntsville International airport and Redstone Arsenal Army Base. Homeowners will also enjoy community amenities, including a pool, cabana and plenty of green space. We build each home with innovative, energy-efficient features that cut down on utility bills so you can afford to do more living.
| 14 hours ago | Listing updated with changes from the MLS® | |
| 14 hours ago | Listing first seen on site |
Listing information is provided by Participants of the Valley MLS. IDX information is provided exclusively for personal, non-commercial use, and may not be used for any purpose other than to identify prospective properties consumers may be interested in purchasing. Information is deemed reliable but not guaranteed. Copyright 2025, Valley MLS.
Data last updated at: 2025-11-29 08:42 AM UTC
Did you know? You can invite friends and family to your search. They can join your search, rate and discuss listings with you.